3 Bedroom Semi Detached  For Sale £599,500

Extended three bed semi detached house

Double Glazed

Gas Central Heating

Off Street Parking

Downstairs w/c

Modern Kitchen

Outbuilding

Two Reception Rooms

Potential Rental £1600 to £1650 PCM

EPC Rating D

Freehold

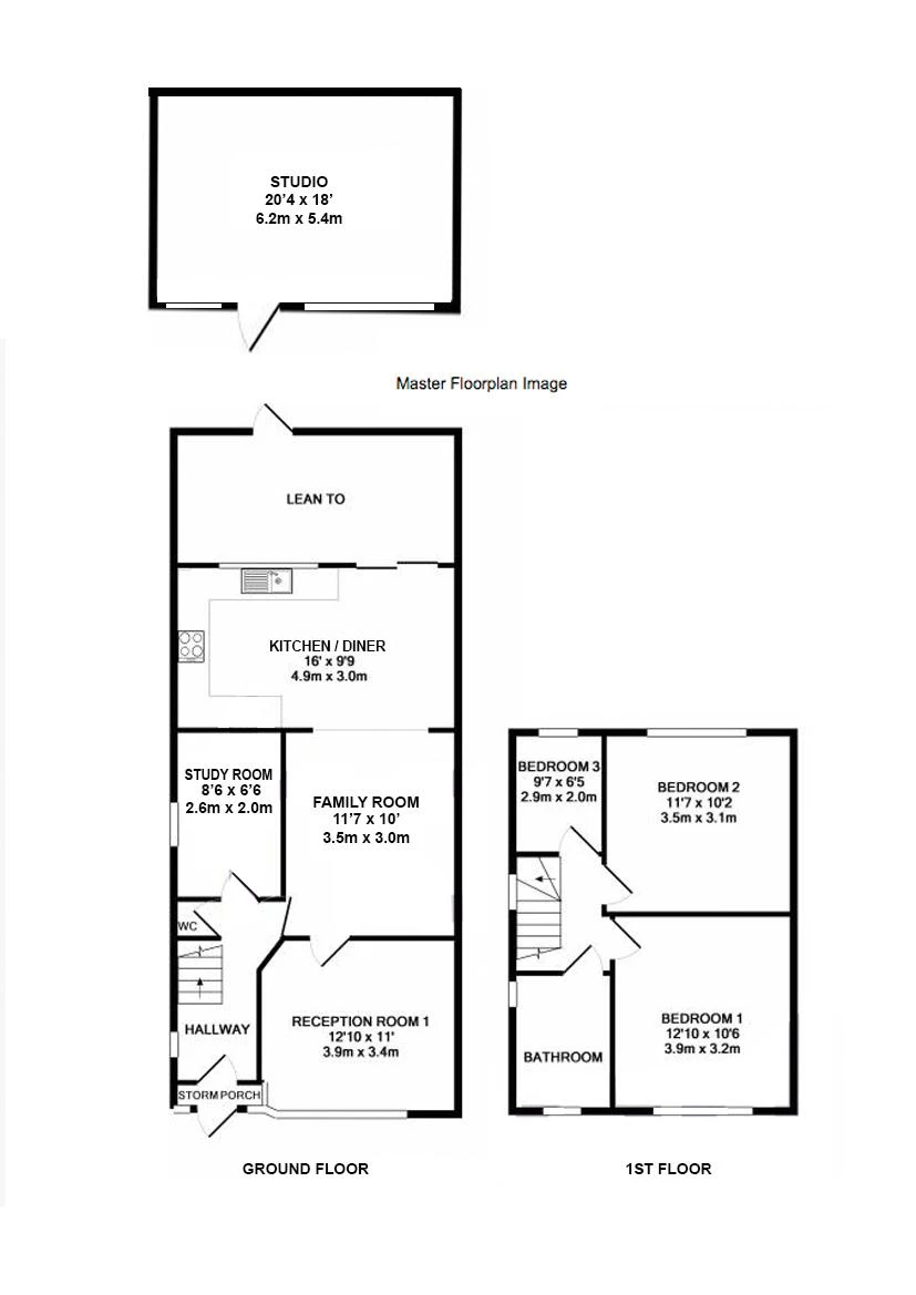
EXTENDED HOME!! Simple Estate Agents present to the market this large extended three bed semi detached house located in a popular North Hayes Road. The property benefits from off street parking, two reception rooms, study room, modern kitchen dining room, lean to and brick built out building. The property is located in a residential North Hayes, close to Uxbridge road, Yeading Lane and popular schools. A viewing is highly recommended to truly appreciate this property..

EPC for Spencer Avenue, Hayes, Middlesex, UB4

Energy
blank Current Potential
Energy
Current Potential

Location

Floor Plan

Floor Plan 1

Property Images

Photo 14
Photo 5
Photo 3
Photo 8
Photo 10
Photo 2
Photo 7
Photo 4
Photo 6
Photo 11
Photo 1
Photo 12
Photo 15
Photo 9

Arrange a Viewing

Arrange a Viewing

Mortgage Calculator

Mortgage Details

Results

Stamp duty calculation

See full breakdown

Total SDLT due

Below is a breakdown of how the total amount of SDLT was calculated

Up to £0k (Percentage rate 0 %)

Above £0k and up to £0k (Percentage rate 0 %)

Above £0k and up to £0k (Percentage rate 0 %)

Above £0k and up to £0k (Percentage rate 0 %)

Above £0k and up to £0m (Percentage rate 0 %)

Above £om (Percentage rate 0 %)

Please note: This is for illustrative purposes only. The above calculator should not be relied upon when making financial decisions. Please seek advice from a specialist financial provider.

IMPORTANT NOTICE

Descriptions of the property are subjective and are used in good faith as an opinion and NOT as a statement of fact. Please make further specific enquires to ensure that our descriptions are likely to match any expectations you may have of the property. We have not tested any services, systems or appliances at this property. We strongly recommend that all the information we provide be verified by you on inspection, and by your Surveyor and Conveyancer.